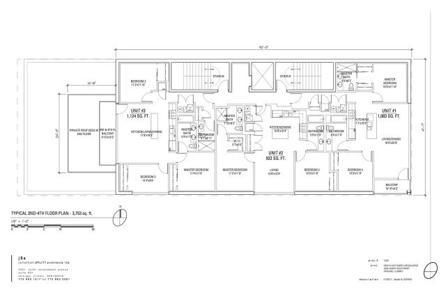
You may recall in late 2015, a public notice went up at 3334 N. Southport Avenue for a new mixed-use development with retail across the street from Coda Di Volpe. New renderings of the proposed development have surfaced on Tom Tunney’s website, and here is what could be coming to the space. The project is still in the discussion stage, and it would be the third proposed TOD for Southport between Belmont and Grace.









