
Demolition Permit Clears Way for New Retail Development at 1800 N. Clybourn
Chicago Home Prices Are Surging — And It’s Happening Faster Than Expected
Chicago’s Low-Line Market Returns for 2026 Season Beneath Southport Corridor Tracks
Colectivo Coffee on Southport Back on Track After Major Structural Rebuild, Summer Opening Targeted

Colectivo Coffee on Southport Back on Track After Major Structural Rebuild, Summer Opening in Sight
Continue reading “Colectivo Coffee on Southport Back on Track After Major Structural Rebuild, Summer Opening Targeted”Whole Foods Replaces Planned Amazon Fresh at Belmont & Halsted
“Absolutely Insane”: Bidding Wars Surge Across Lakeview, Southport Corridor, and Lincoln Park
Demolition Permit Pending for Drive-Thru Bank at Southport & Addison as Residential Project Moves Forward
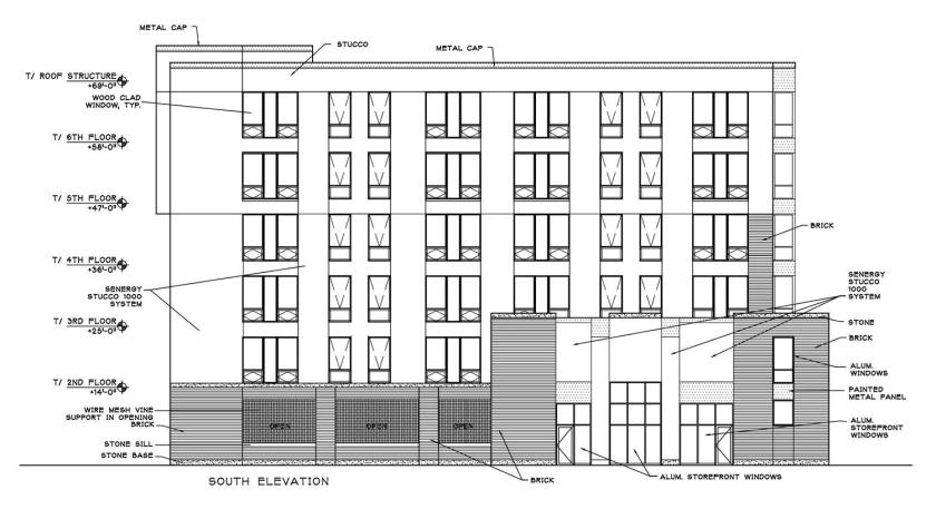
Demolition Permits Issued for Southport/Belmont Development

Demolition permits have been issued for a series of buildings along West Belmont Avenue in Lakeview, clearing the way for a new mixed-use residential development at 1215 W. Belmont, according to city records and project details. The site is the former home of Stage 773, which closed in 2021.
Continue reading “Demolition Permits Issued for Southport/Belmont Development”








