
Demolition permits have been issued for a series of buildings along West Belmont Avenue in Lakeview, clearing the way for a new mixed-use residential development at 1215 W. Belmont, according to city records and project details. The site is the former home of Stage 773, which closed in 2021.
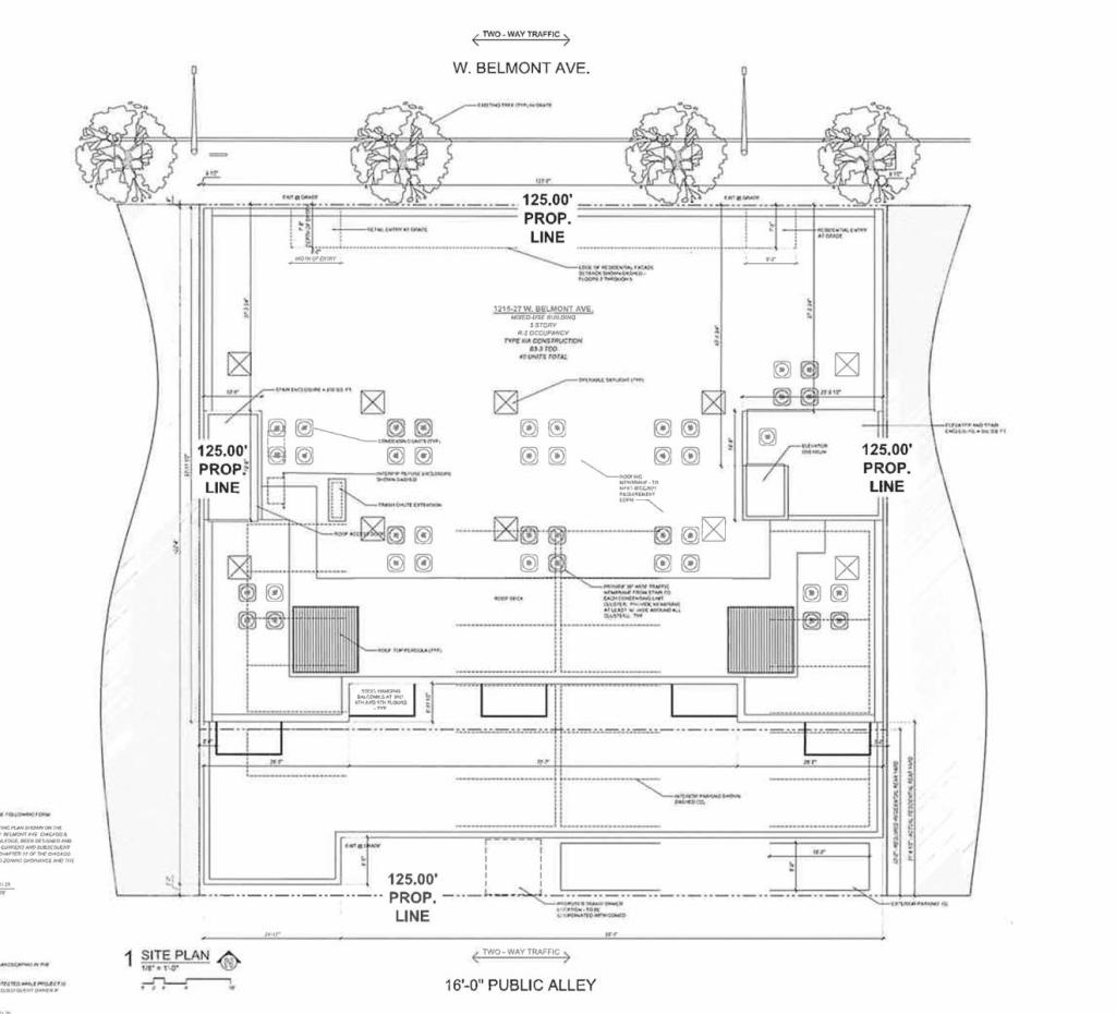
The project, led by JAB Real Estate and designed by Moth Architects, will replace a vacant theater and adjacent low-rise structures located midblock between North Racine and North Lakewood avenues.

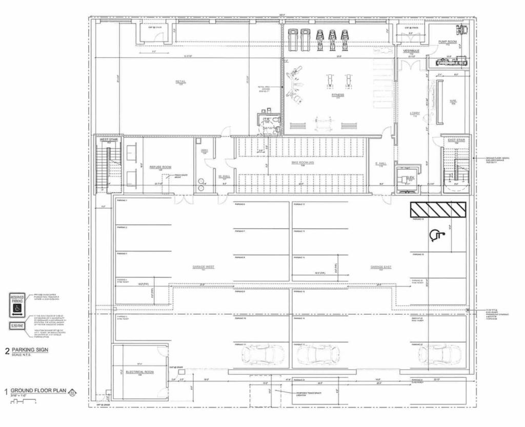
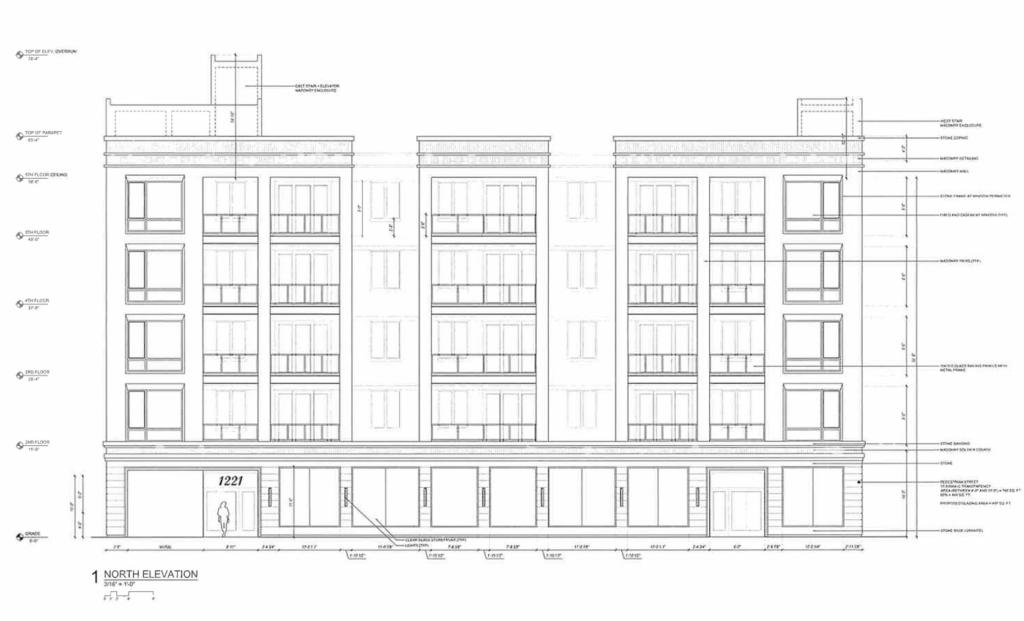
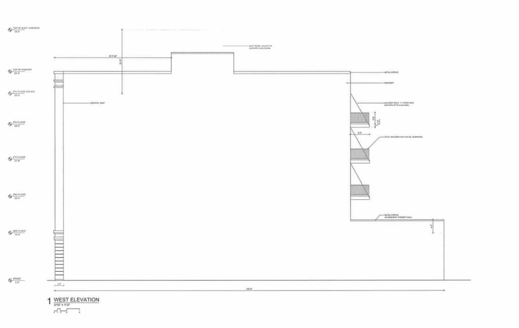
Plans call for a five-story building rising approximately 78 feet, featuring 40 residential units and 2,238 square feet of ground-floor retail space. The development will also include 24 parking spaces and 40 bicycle parking spots.
The ground floor is designed to activate the Belmont streetscape with retail frontage, alongside a residential lobby and fitness center. A rear-access parking garage will be accessed via the alley.
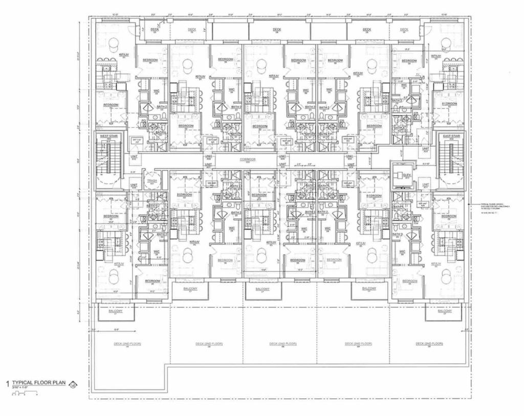
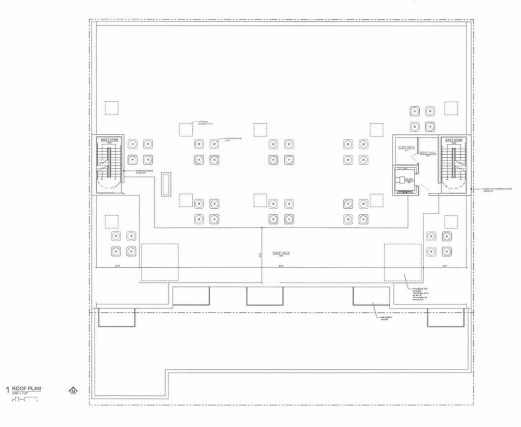
Upper floors will contain 10 units per level, all configured as two-bedroom apartments. Each unit will feature a private outdoor space, either facing Belmont Avenue or the rear of the property, while residents will also have access to a shared rooftop deck.
Demolition permits specifically cover the existing structures at 1215, 1219, and 1225 W. Belmont, with Taylor Excavating & Construction named as the demolition contractor.
While approvals for the project were previously secured by the Chicago City Council in 2025, a construction timeline has not yet been announced.








