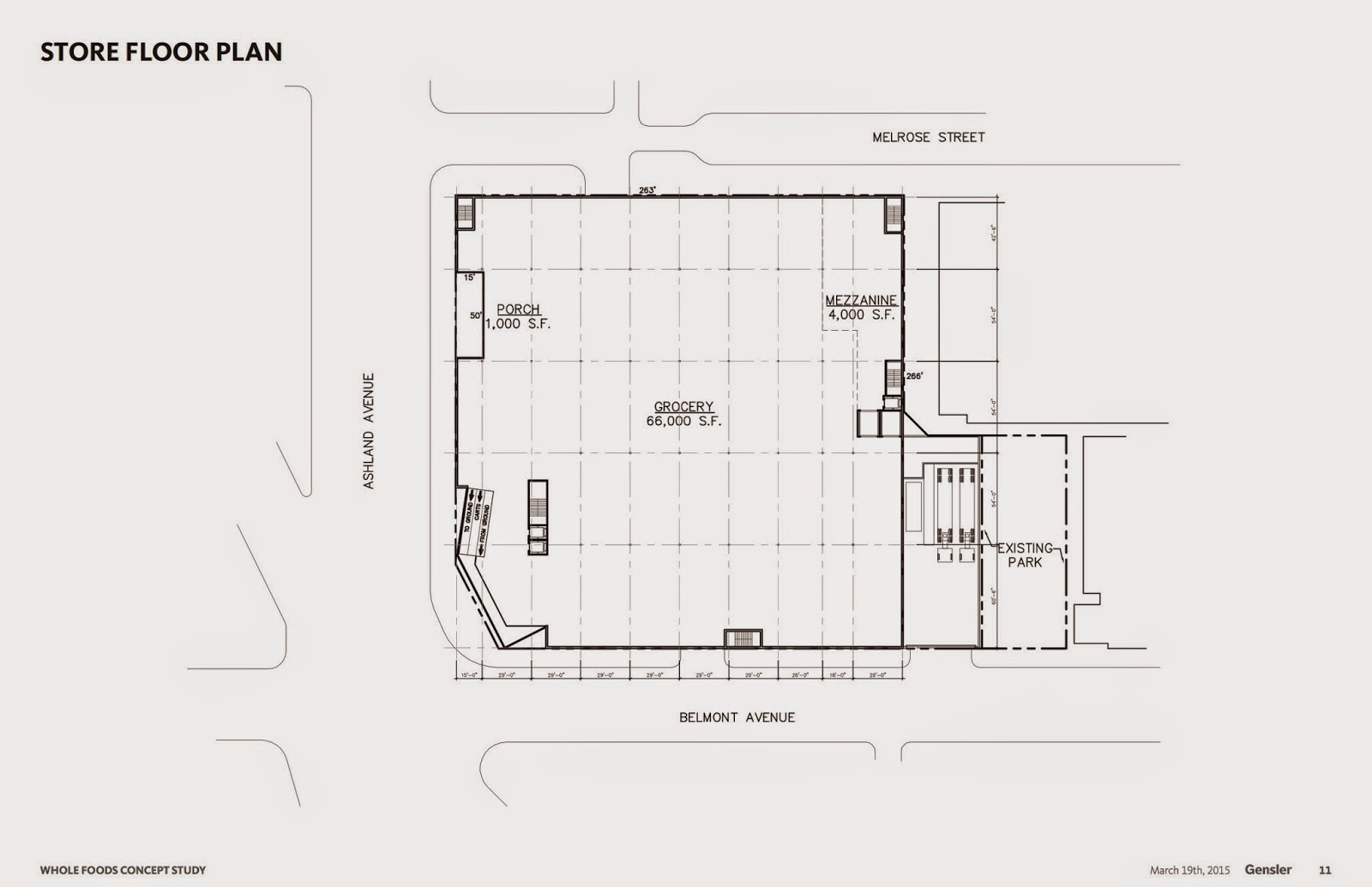
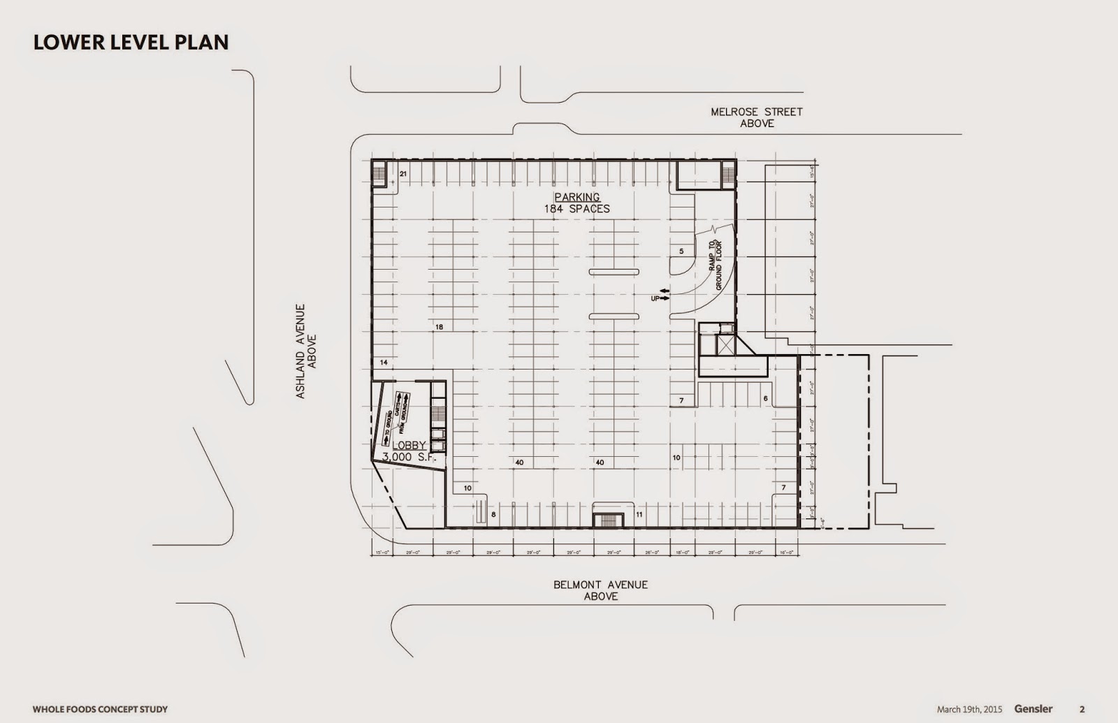
As we know, Whole Foods is coming to the intersection of Belmont, Ashland and Lincoln in Chicago, and will be the second largest Whole Foods in Chicago. Take a detailed look at the plans for the store. What are your thoughts?
Southport Corridor News and Events – Chicago, Illinois
Chicago’s Southport Corridor in Chicago’s Lakeview Neighborhood. All the latest news of what is happening in and around Lakeview's Southport Corridor neighborhood.