After years of being abandoned, there are finally proposed plans for a transit-oriented development with retail at 3347-3349 N. Southport Avenue.
![]() |
| 3347-49 N. Southport – Current Building |
From Ald. Tom Tunney’s Website:
“3347-49 North Southport Avenue
B3-2 to B3-5
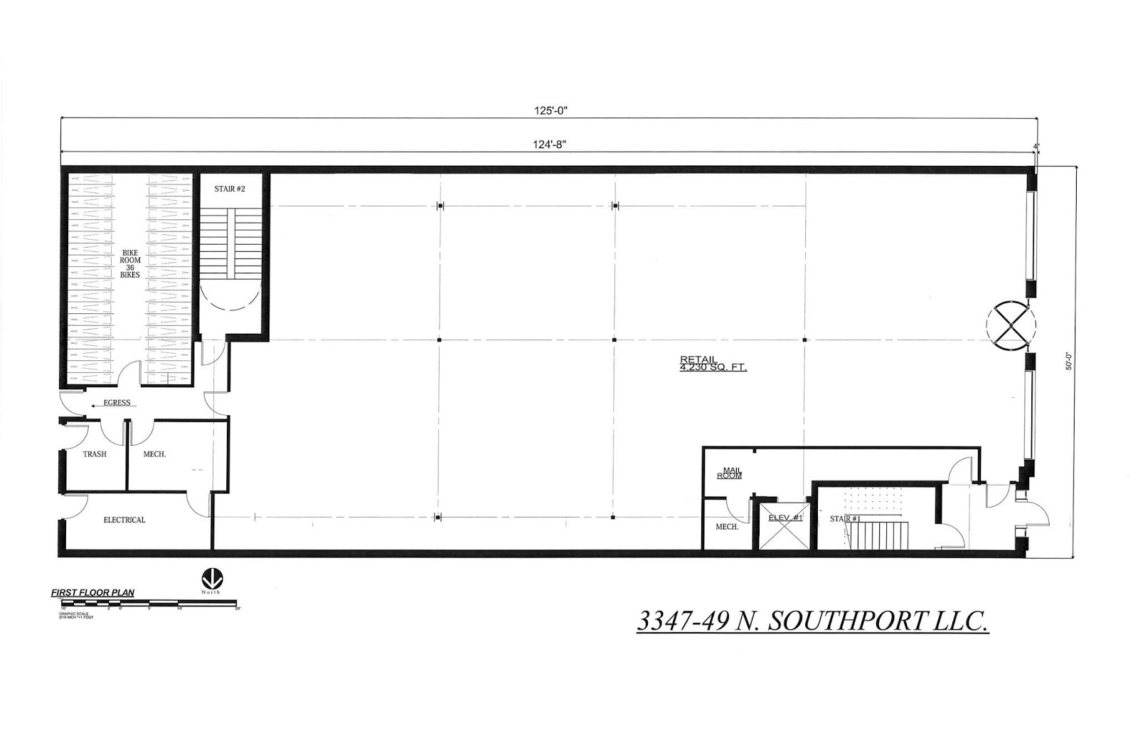
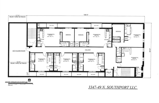
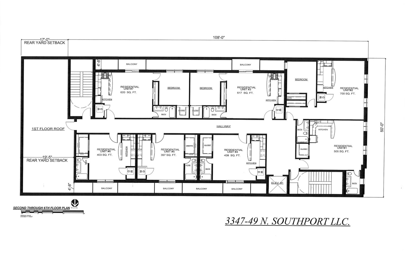
The applicant wishes to rezone the property to construct a proposed 6-story mixed-use building with 1 ground floor commercial space (4,230 sq. ft.),
35 residential units and 36 bike parking stalls. There is no planned parking on-site; the applicant will seek to establish the subject property as a transit-served location to waive the required parking. *36 bike parking stalls will be provided on-site. The applicant will seek the necessary relief to establish the subject property as a transit-served location in order to waive 100% of the required on-site parking stalls.”
See the renderings below:








