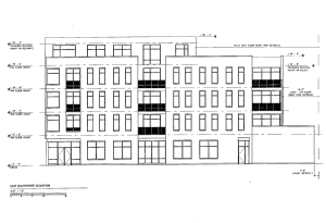
The transit-oriented development (TOD) at 3200 N. Southport now has its first retail tenant signed, spaderma. According to spaderma\’s website, it specializes in advanced skincare, cosmetic injections, laser hair removal and lip filler. The medical skin care and laser institute currently has locations in Lincoln Park, the West Loop and the North Shore. Spaderma will take the south east portion of the retail area and the second retail area is still TBD.
Continue reading “Spaderma coming to 3200 N. Southport Avenue”



















