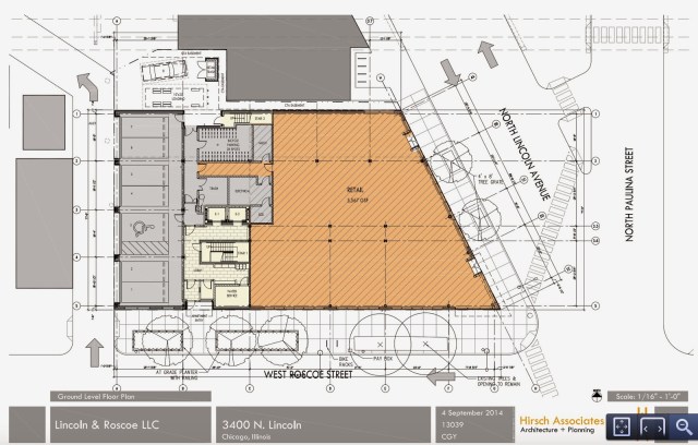
Approval was given by Ald. Pawar to 3400 N. Lincoln Avenue – a new, mixed-use transit area development. Here is the link to the full development brochure, and photos are included below.
Southport Corridor News and Events – Chicago, Illinois
Chicago’s Southport Corridor in Chicago’s Lakeview Neighborhood. All the latest news of what is happening in and around Lakeview's Southport Corridor neighborhood.
Approval was given by Ald. Pawar to 3400 N. Lincoln Avenue – a new, mixed-use transit area development. Here is the link to the full development brochure, and photos are included below.
We happen to meet a great people there and started to chat with them and drink w/them too. I had a great time here, glad we found this place by accident. Will definitely come to party halls in Boston MA again as anyone will make this a regular spot easily.
LikeLike