
A meeting is on the horizon to discuss the zoning application for the new development set to replace Dinkel’s Bakery at 3327 N. Lincoln Avenue. The proposal not only includes a fresh home for the beloved neighborhood bakery but also plans to demolish three nearby buildings, each between one to three stories tall. The project is a collaboration between PCR Group and Jonathan Splitt Architects, and it’s generating quite a buzz after last month’s zoning meeting deferral.

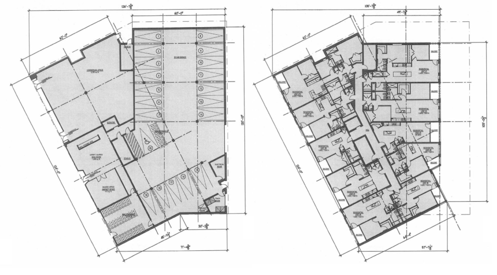
The proposed development will span the entire loosely V-shaped lot bounded by N. Marshfield Avenue to the east. It features a six-story structure that reaches a height of 80 feet. This new building will preserve the historic Dinkel’s Bakery facade and its iconic neon sign. On the ground floor, you can expect a 2,700-square-foot commercial area along Lincoln Avenue, right next to the residential lobby, amenity space, and a room for 42 bicycles. Additionally, a 20-vehicle parking garage accessible from Marshfield Avenue will be tucked away in the rear.

In terms of design, the building will be a blend of materials, including corrugated metal, various colors of metal panels, and dark-colored masonry. In total, it will offer approximately 66,000 square feet of space, primarily dedicated to 42 residential units. These units will vary in size and layout, ranging from cozy studios to spacious three-bedroom apartments, with sizes spanning from 628 square feet to 1,318 square feet. Importantly, nine of these units will be designated as affordable housing, providing an inclusive living environment.

Future residents of this development will have convenient access to public transportation, with CTA bus routes 9, 77, and 152, as well as the nearby Paulina Brown Line station, just a short walk away.
The project will be discussed at this month’s zoning meeting scheduled for the 12th, as it seeks approval for a zoning change to B3-3 Transit Oriented Development (TOD). As of now, no specific construction timeline has been officially announced.
25 stories would be better. Right next to brown line. Density is good in rich neighborhoods. Dream bigger.
LikeLike