
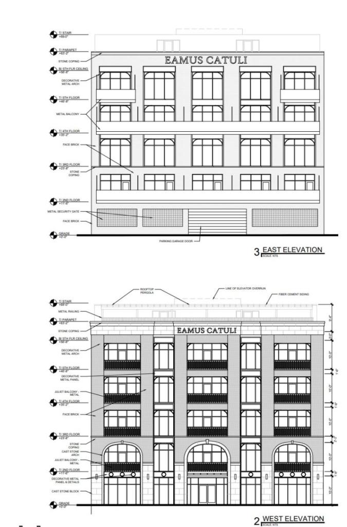
A proposal for a residential development is underway at 3627 N. Sheffield, situated between W. Addison St and W. Waveland Ave, midblock. The project is positioned directly across from Wrigley Field. Crafted by DXU Architects, the five-story building is slated to reach a height of 69 feet. Its facade will feature a combination of brick, stone copings, and decorative metal panels and arches.






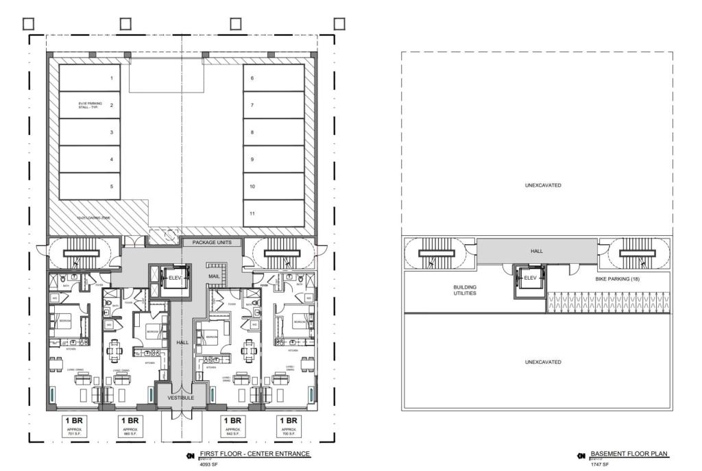
The ground floor will host the residential entry at the center of the frontage, flanked by four one-bedroom units. The back half of the ground floor is designated for 11 parking spaces, with an additional 18 bike spaces located in the basement. The project comprises a total of 29 residential units, including 13 one-bedroom, 14 two-bedroom, and two three-bedroom units.
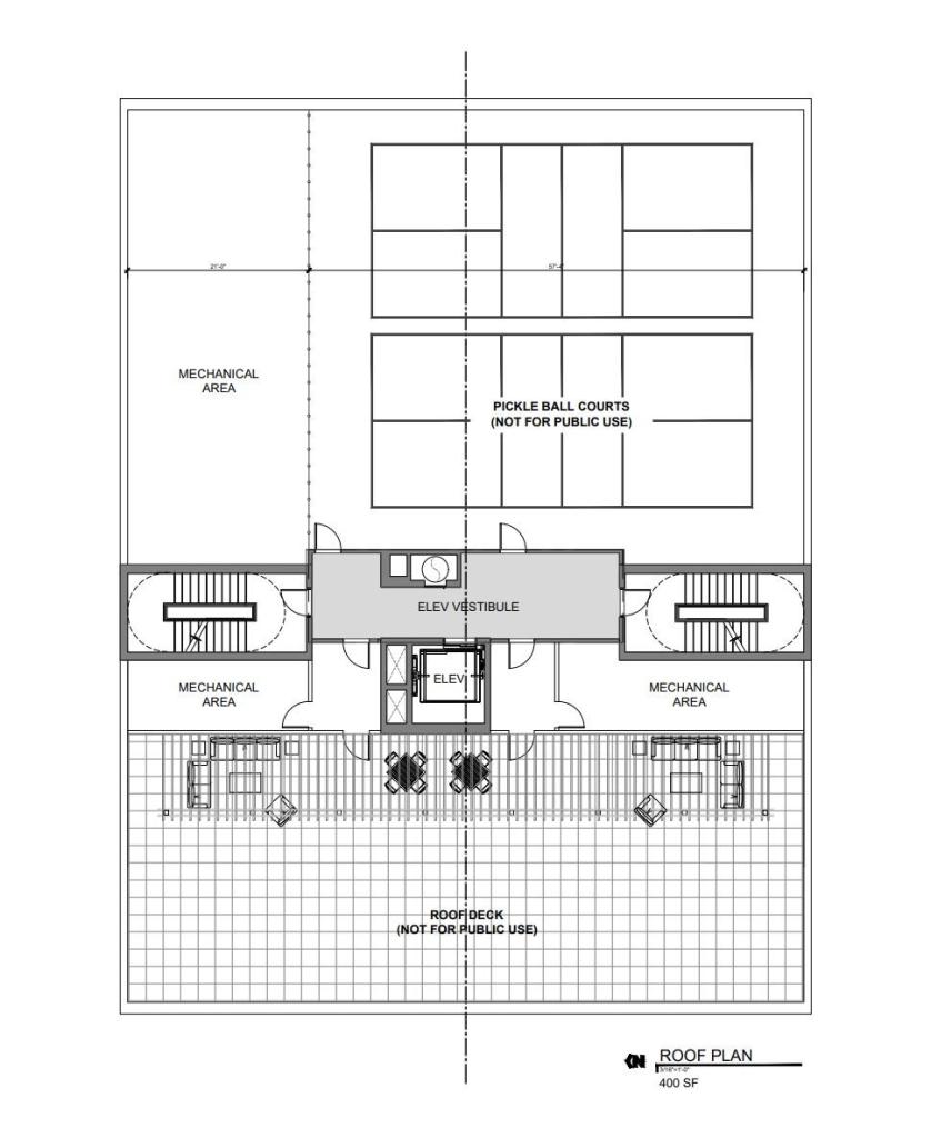
On the second through fourth floors, each level will accommodate seven units, comprising three one-bedroom and four two-bedroom units. The fifth floor will house four units, with two two-bedroom and two three-bedroom options. Residents will enjoy access to a shared rooftop deck featuring outdoor space, seating, and pickleball courts.
Currently zoned RT-4, the developer seeks to rezone the site to B2-3. Although the project plans have been published on the 44th Ward website, the developer’s identity remains undisclosed. Approvals from Alderman Lawson, the Committee on Zoning, and City Council are required for the project to proceed