
Developers and city officials recently celebrated the groundbreaking of Lakeview Landing, a mixed-use development at 835 W. Addison. This project, located at the intersection of W. Addison St and N. Reta Ave, will replace the existing Lakeview Lutheran Church. The church is collaborating with Evanston-based Over the Rainbow Association to bring this vision to life.
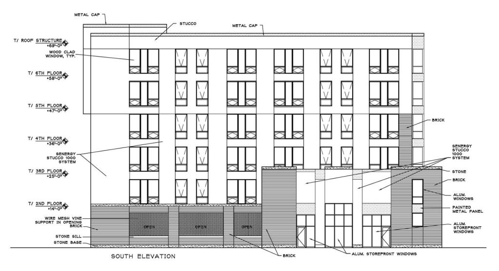
Designed by Weese Langley Weese, the six-story development will feature 37 residential units and a ground-floor religious assembly space. Standing 69 feet tall, the building will offer disability-accessible, affordable rental units. Each of the 575-square-foot, one-bedroom units will be fully accessible, catering to residents with incomes at or below 30% of the area median income (AMI) and specific accessibility needs. The second floor will house a shared laundry room and office spaces.
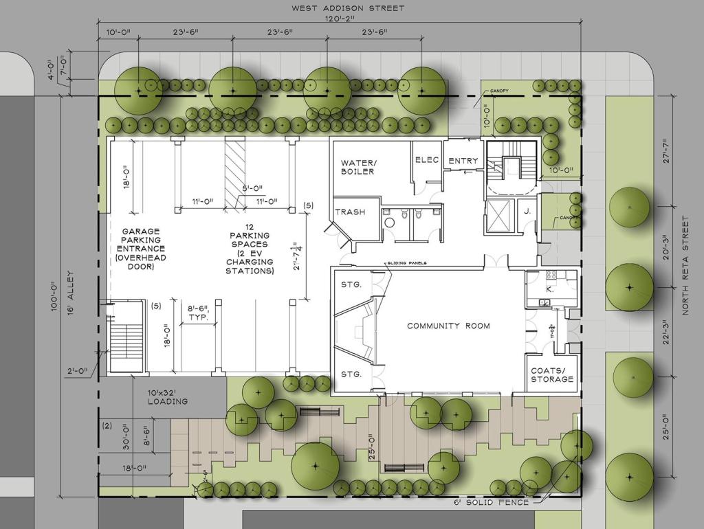
The project will include 10 parking spaces for residents and feature landscaping around the building. The site design also includes a pedestrian walkway along the south side of the building.
Lakeview Landing aims to empower mobility-impaired adults to live independently in a residential community rather than an institutional setting. Residents will be able to self-direct their personal care with support from a well-staffed resident service program offering various quality-of-life and concierge services. The building will function as an independent apartment complex but will be customized with universal design and barrier-free features, exceeding current ADA standards. Specific features include roll-in showers, pull-under sinks, accessible appliances, and lowered switches, outlets, windows, and door handles. Additionally, the building will incorporate various common spaces and market-rate amenities.
With the groundbreaking officially celebrated, construction is now underway. A demolition permit was recently issued to clear the existing church structure, and the full building permit for the new construction has already been granted. General contractor Powers & Sons Construction will begin the new build once the site is cleared, as reported by Urbanize.



