Updated March 5, 2015: The meeting has been postponed for a future date.
A meeting has been scheduled for the proposed mixed-use transit oriented development for 3401-09 N. Southport Avenue on Monday, March 9 at 7:00 PM at Mystic Celt (3443 N. Southport Avenue). This is a very similar design concept that is coming to 3400 N. Lincoln Avenue.
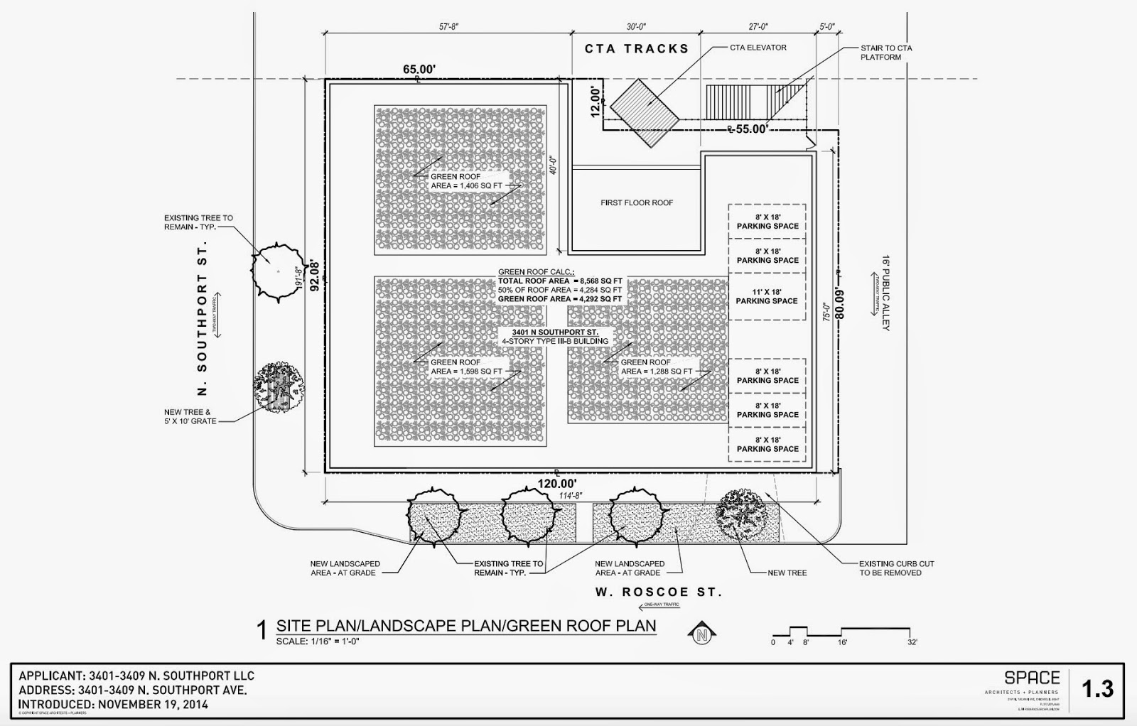
The following is now known:
-
- A 4-story building with retail on the first floor
- 33 apartments with starting rent at $1,500
- 6 parking spaces with one being a handicapped spot
The project will be presented by the developer to all that attend the West Lakeview Neighbors meeting. See the renderings below for the new development.
![]() |
| Note: we did not post this note, we snapped a photo of it hanging next to Fleet Feet. |






This bldg. is WAY TOO BIG with 33 units for this location & corner density. Is Tunney etc. out of his fcking mind?!?!? STOP this…go to the meeting. The neighborhood group is right.
LikeLike
Thanks for informing us about the meeting date. But sorry dear I could not found the address of meeting rooms here. I want to attend this meeting so share address and some more details with me here on this blog. I am looking forward a reply from you.
LikeLike