L3 Capital buys Mystic Celt

“The owner of the Mystic Celt bar sold its single-story building on Southport Avenue to a real estate investor that has redeveloped several properties on the Lakeview shopping avenue.”

As we wrote about in May, L3 Capital was in the process of buying Mystic Celt, and it was confirmed today by Crain’s Chicago Business.

“The owner of the Mystic Celt bar sold its single-story building on Southport Avenue to a real estate investor that has redeveloped several properties on the Lakeview shopping avenue.”

Continue reading “L3 Capital buys Mystic Celt”

B. Rose Salon’s space moving two doors north to Pure Nirvana’s former location

B. Rose Salon is moving two doors north and their current space is for lease.  Pure Nirvana Spa closed several weeks ago, and B. Rose is taking over that space. Rumor on the ‘Port is that a restaurant will be coming into the space, but no word yet on what type/kind.

Continue reading “B. Rose Salon’s space moving two doors north to Pure Nirvana’s former location”

Say goodbye to the former Lulu Belle’s Pancake House Building

3819 N. Southport Avenue, former home of Lulu Belle’s pancake house is being torn down for a mixed use development. More information as we receive it, but expect condos and retail in this location.

Crosby’s Kitchen Expanding with an Adult-Themed Dinner Concept

Good news for all of you who have been asking for an adult wine-bar type of space on the Southport Corridor. Crosby’s Kitchen has recently purchased the Wrigleyville Dental space, and will begin a new-concept build out in the spring of 2016. We’ve been told it will be an over-21 space, most likely a Wine Bar/Dinner Bistro establishment. We’re also hearing the possibility / wishlist of a rooftop deck on the space, and the possibility of a tear-down to the old dental space with reconstruction.  So, kid-friendly up front, adult-friendly in the back.

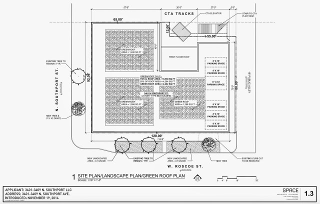
Southport’s TOD could begin development late this year (update – looks like later in 2018 now)

We reached out to Alderman Tom Tunney on the status of the proposed TOD at 3401 N. Southport Avenue as far as when development would take place.  Per the Alderman, the developers still need to go through the planning commission and zoning committee, and then once approved, construction could start later in 2015 or early 2016 (update, we are hearing now 2017).  Galleria Liquors would be coming back as a tenant, but it is unlikely that Rise Sushi will be (they are looking for a new location around Southport however). 

From May’s WLVN meeting, the group voted yes (27-18) in recommending the Southport TOD mixed-use building at 3401-09 N. Southport. See the floor plans below, and more detailed designs can be found at this link.

Your first look at 3401 N. Southport’s Proposed TOD

As we have blogged in the past, Rise Sushi and Galleria Liquors site locations are being proposed for this Transit Oriented Development (TOD).

Continue reading “Your first look at 3401 N. Southport’s Proposed TOD”

Have you seen the Lakeview Master Plan? Is it time for the proposed CVS extreme makeover?

The Lakeview Master Plan was created in 2011, and out of it we have been lucky enough to get great things like the Low Line Market, People Spots and the upcoming Lincoln/Southport and Wellington corner improvements (just to name a few). CVS was specifically listed as a candidate for a makeover (and every time it rains, the roof leaks and there are buckets all over the store to collect the water, so something has to get fixed).

What are your thoughts?  Is it time for a CVS extreme makeover?

See the full PDF plan from the Lakeview Chamber here.

Southport CVS – After

Retail and Apartments coming to Southport, Lincoln and Wellington

From Crain’s Chicago Business, a mixed-use development is coming to the former Herdegen-Brieske Funeral Home with about 10 apartments and full retail on the first level.

“A venture led by Chicago-based developer Stonestreet Partners bought a former funeral home in Lakeview that it plans to redevelop into retail space and apartments. Stonestreet paid $3.8 million for the Herdegen-Brieske Funeral Home property at the northeast corner of Lincoln, Southport and Wellington avenues, a 12,500-square-foot building on 0.33 acres, according to a statement from Mid-America Real Estate, the Oakbrook Terrace brokerage that sold the property. Stonestreet CEO David Trandel said he aims to keep the brick building, which dates back to 1918, and find a retail or restaurant space to lease its street-level space. Trandel, who is teaming up on the project with Barrington apartment developer Rick Cavenaugh, also plans to redevelop the property with about 10 apartments. Mid-America Principal Paul Bryant and Vice President Andrew Becker represented the seller, the Herdegen family.”

And more from the Chicago Sun-Times, apartments will rent between $2,500 to $3,300 per month, and national retail tenants are eyeing the spot for it’s prime location.

Continue reading “Retail and Apartments coming to Southport, Lincoln and Wellington”

Here is what J. Crew on Southport Avenue will look like

As we have reported over the past several months, J. Crew is coming to 3423 N. Southport Avenue, and Crain’s Chicago Business has the updated rendering of what the building will look like with J. Crew signage.

J. Crew on Chicago’s Southport Corridor.  The building should be completed by the end of 2015.

Continue reading “Here is what J. Crew on Southport Avenue will look like”

Mapping the vast change in and around Chicago’s Southport Corridor

Can’t keep up with all of the changes happening to Chicago’s Southport Corridor?  Don’t worry, we’ve got you covered. Here is a summary of what to expect over the next several months into 2016-17:

  1. 3451-53 N. Southport actively being marketed for lease
  2. LuluBelles Pancake House building now demolished and new retail/residences coming
  3. The Princess Club has moved to Roscoe Village and their space is currently for lease
  4. Chipotle is eyeing the Southport Corridor
  5. J. Crew is coming to 3423 N. Southport – see the rendering here
  6. SoulCycle is coming above J. Crew at 3423 N. Southport
  7. Ann Taylor’s ‘Lou & Grey’ now open at 3442 N. Southport
  8. Corridor Brewery is coming to 3446 N. Southport
  9. FedEx Southport location now marketed into a 12,000 sq. foot retail development (TBD)
  10. Coalfire Pizza now open at 3705 N. Southport
  11. Chicago Health Medical Center is opening next to Fleet Feet (officially name is TBD)
  12. B. Rose Salon has moved two door north to the former Pure Nirvana Spa location.
  13. A new restaurant from the owners of The Gage and GEMINI BISTRO is coming to 3335 N. Southport
  14. Mystic Celt bought by L3 and is actively being marketing for lease
  15. Einstein’s Bagel space is currently for lease
  16. Cullen’s is closed and The Mercury Theater will be opening a new establishment in it’s place
  17. Burger Boss is closed and is actively being marketed for lease
  18. Lole open at 3434 N. Southport
  19. Bitter Pops and Reverb coming to L3’s 3345 N. Lincoln Avenue
  20. Crosby’s Kitchen expanding with a new adult concept into the Wrigleyville Dental space
  21. Whole Foods coming to Lincoln, Ashland and Belmont
  22. Rise Sushi and Galleria Liquors to be replaced by this TOD
  23. The former spring yoga studio above Indira is actively being marketed
  24. Frankie’s on the Park is coming to 3708 N. Southport Avenue
  25. Large-scale development coming to 1356 W. Wellington Avenue
  26. “The Spanish Square” coming to the former El Pacifico site at 1358 W. Belmont
  27. The Former “Uncle Fun” building is demolished and will include a new mixed-use retail and residential development
  28. 3740 N. Southport office space for sale
  29. 3726 N. Southport is for lease
  30. TOD at 3400 N. Lincoln Avenue now under construction
  31. 3345 – 3355  N. Lincoln Avenue Development
  32. 3715 N. Southport is for lease
  33. 3430 N. Southport being actively marketed by L3 and Cushman and Wakefield (However this permit was just issued for a build-out)
  34. 5411 Empanadas coming to 3715 N. Southport
  35. 3451 N. Southport being actively marketed by L3 and Cushman and Wakefield

FedEx Southport Marketed as a New Retail Development at 3524 N. Southport Avenue

FedEx Office, currently located at 3524 N. Southport is being marketed to make room for a new 12,000 square foot “Marquee Retail Space” on Southport Avenue.  The current building will have a new facade like we currently see at the future Lou & Grey and Corridor Brewery building.  The space will either be split in half with 6,000 square feet of retail, or combined as one giant 12,000 square foot retail space (much like Anthropologie, including a double-barrel truss roof).

“Outstanding retail opportunity on Southport at Eddy St. This 12,000 sf double barrel truss roof building will provide 6,000 sf of column-free clear-span space. Each of the two 6,000 sf space has 50′ of frontage along Southport and 120′ depth. Renovation in fall 2015 will provide new facade and mechanicals. Great opportunity for national apparel tenant. Renovation to be completed first quarter 2016.
In the heart of Chicago’s Southport corridor just south of Anthropologie. Other street co-tenants include Gap, Athleta, Free People, lululemon, Blue Mercury, Benefit Cosmetics, Fleet Feet and a host of other national and boutique apparel retailers. This is an incredible opportunity to have huge street presence in a beautiful retail atmosphere. Excellent demos”

See the full listing below.

Continue reading “FedEx Southport Marketed as a New Retail Development at 3524 N. Southport Avenue”

Whole Foods confirmed at Lincoln, Ashland and Belmont; Opening in 2017

Target is out, Whole Foods is in.  From The Chicago Tribune, Whole Foods has confirmed that it will be moving it’s Lakeview store across the street to the corner of Lincoln, Belmont and Ashland.  The store is set to open in the spring of 2017 and will be 75,000 square feet, just 4,000 feet shy of the Lincoln Park flagship store.  Even cooler – they will have a microbrewery as well.

What are your thoughts, neighbors?