
Spring 2015 on Chicago’s Southport Corridor by Southport Corridor
Southport Corridor News and Events – Chicago, Illinois
Chicago’s Southport Corridor in Chicago’s Lakeview Neighborhood. All the latest news of what is happening in and around Lakeview's Southport Corridor neighborhood.

Spring 2015 on Chicago’s Southport Corridor by Southport Corridor
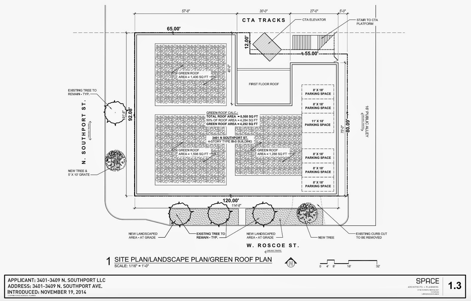
As we have blogged in the past, Rise Sushi and Galleria Liquors site locations are being proposed for this Transit Oriented Development (TOD).
Continue reading “Your first look at 3401 N. Southport’s Proposed TOD”
From Tom Tunney’s office, there has been a proposal for the Rise Sushi and Galleria Liquors location to build a new mixed-used Transit Oriented Development (TOD). The proposal would include 30 apartments with ground-level retail next to the Southport “L” line.
Continue reading “Southport’s Rise Sushi and Galleria Liquors could be replaced by a TOD”
Take a tour of Southport with us during the fall of 2014!
![]() |
| Schoolyard Tavern |
![]() |
| Justin\’s Bar and Grill |
![]() |
| Potbelly, Einstein Bagels |
![]() |
| Lakeview Insurance, Hot Mama |
![]() |
| DavidsTea, Anthropologie |
![]() |
| Splendid, Blue Mercury, FedEx |
![]() |
| Krista K, Lange\’s Lounge |
![]() |
| Benefit Cosmetics, That\’s Amore Florist |
![]() |
| Anthropologie |
![]() |
| She One, Anthony\’s Italian Ice, Southport Grocery |
![]() |
| Lululemon |
![]() |
| Lululemon |
![]() |
| Lululemon |
![]() |
| European Wax Center, Chase |
![]() |
| Que Syrah, Stella Blue |
![]() |
| Bank of America, Edible Arrangements |
![]() |
| Music Box Theater |
![]() |
| Froyo Chicago Southport |
![]() |
| Blaine School |
![]() |
| Tango Sur |
![]() |
| Spencer\’s Jolly Posh Foods |
![]() |
| Music Box |
![]() |
| Mercury Theater, Candyality, Cullen\’s |
![]() |
| Pasta Al Gusto |
![]() |
| Sensational Bites |
![]() |
| Click Shoes and More |
![]() |
| Coalfire Pizza Southport |
![]() |
| Coalfire Pizza |
![]() |
| Coalfire Pizza |
![]() |
| Julius Meinl |
![]() |
| Cafe Tola |
![]() |
| Jewel-Osco Southport |
![]() |
| Sushi Mura, CVS |
![]() |
| dog-a-holics |
![]() |
| Lululemon |
![]() |
| Butcher\’s Tap, Uncle Dan\’s Great Outdoors |
![]() |
| Paper Source Southport |
![]() |
| Francesca\’s Collection |
![]() |
| k. hall designs / U.S. Apothecary |
![]() |
| Crosby\’s Kitchen |
![]() |
| Crosby\’s Kitchen |
![]() |
| Splendid, Bluemercury, Aligned Modern Health |
![]() |
| M2 Boutique, State St. Barbers |
![]() |
|
|
![]() |
| Free People Southport, Mystic Celt |
![]() |
|
|
![]() |
| Gap, Einstein Bagels, Potbelly |
![]() |
| Gap, Jeni\’s Splendid Ice Creams, Southport CTA |
![]() |
| Rise Sushi, Fleet Feet Southport |
![]() |
| Starbucks, Jeni\’s Ice Creams |
![]() |
| Galleria Liquours |
![]() |
| Athleta |
![]() |
| Noodles & Company, Athleta, Southport Fitness |
![]() |
| Fleet Feet Southport (under construction) |
![]() |
| Pure Nirvana Spa |
![]() |
| B. Rose Salon |
![]() |
| Southport Lanes |
![]() |
![]() |
| Perchance and Blue Mercury |
![]() |
| Uncle Dan’s and Wheel House Wrigley |
![]() |
| Lululemon |
![]() |
| Rise Sushi |
![]() |
| Anthropologie |
![]() |
| Noodles and Company, Coobah, Candyality |
![]() |
| Schoolyard Tavern and Princess Club |
![]() |
| Mystic Celt |
![]() |
| Krista K and That’s Amore Florist |
![]() |
| Blue Mercury |
![]() |
| Southport Lanes |
![]() |
| Southport CTA |
![]() |
| Anthropologie |
![]() |
| Southport Grocery and Cafe |
![]() |
| D’Agostino’s and Julius Meinl |
![]() |
| b. rose salon |
![]() |
| Justin\’s |
![]() |
| Perchance |
![]() |
| Custom Eyes and Francescafree’s |
![]() |
| Free People Southport |
![]() |
| Southport CTA Entrance |
![]() |
| Paper Source Southport |
![]() |
| She One Boutique |
![]() |
| Princess Club |
![]() |
| Indira Salon |
![]() |
| Lululemon |
![]() |
| M2 and M4M, State Street |
![]() |
| Cerato Boutique, Crosby’s Kitchen |
![]() |
| Anthropologie |
![]() |
| David’s Tea Southport |